Этот сайт использует файлы cookie. Продолжая использовать этот сайт, вы соглашаетесь на их использование. Для получения дополнительной информации, пожалуйста, ознакомьтесь с нашим Положением об обработке персональных данных.
Киото
Облицовка дома кирпичом BRICKSTONE
Проект двухэтажного дома из газобетона
Облицовка дома кирпичом BRICKSTONE
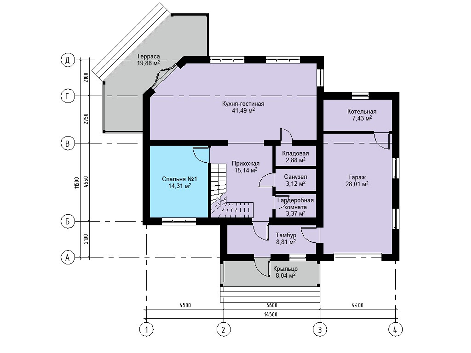
План 1 этажа
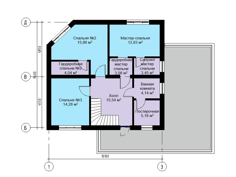
План 2-го этажа
Фасад
Фасад
Фасад
Фасад

Киото

183.70 м2
94.60 м2
Размеры дома
14.1 х 11.98 м
Количество комнат
5
Количество спален
4
Цокольный этаж
нет
Гараж
да
Мансарда
да
Котельная
есть
Толщина наружных
500 мм
Материал стен
D500 B2.5
Фундамент
Буронабивные сваи с монолитным ростверком
Перекрытия
Панели перекрытий СИБИТ
Высота потолков 1-го этажа
2.72 м
Высота потолков 2-го этажа
2.72 м
5 000 i

Остались вопросы по проекту?

Вы можете оставить свои контактные данные, кратко описать что вы хотите и наш менеджер свяжется с Вами в ближайшее время.

Строительство дома под ключ

Воспользуйтесь услугами проверенных строительных бригад, прошедших специальное обучение и сертификацию по строительству домов из газобетона.

Посмотреть монтажные организации

Спасибо за обращение!

Ваша заявка принята.

Внимание!

Проверьте данные в форме

Оставить заявку